
Casa en Ladera
Colombia
2010
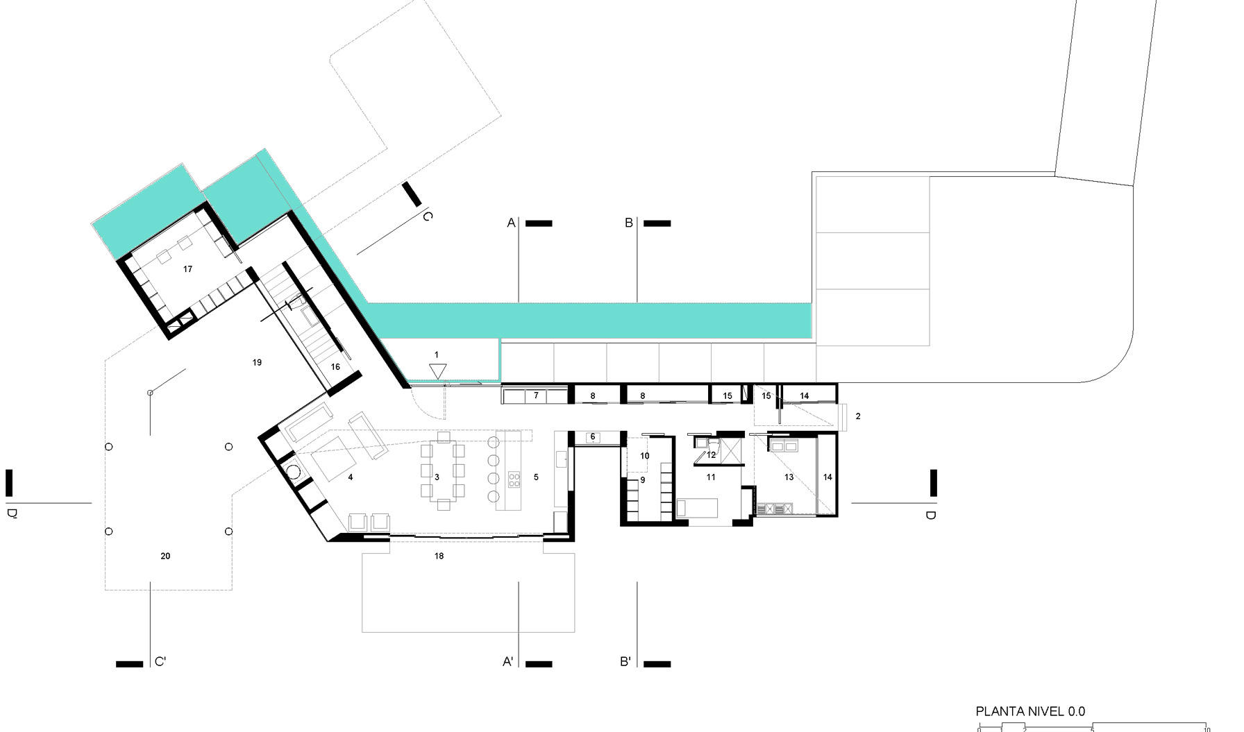
Si dibujáramos una línea alrededor del perímetro de la casa obtendríamos un polígono irregular con rectas cortas, lleno de incisiones y giros repentinos. Esta geometría solo pretende responder a la pregunta: ¿cómo una casa se puede deformar a partir de los eventos lejanos y cercanos del paisaje?. La operación era compatible con un interés particular del cliente, que quería separar claramente los espacios interiores. Estos han quedado articulados por los vacíos, para separarlos pero a la vez mantenerlos relacionados visualmente, como si se tratara de varias casas más pequeñas.







Las perforaciones al volumen se realizaron cuidadosamente según los eventos lejanos y cercanos en el paisaje, así que cada abertura es única y su forma, ubicación y proporción responden a este interés. Algunos vanos miran el paisaje lejano mientras otros establecen relaciones con fragmentos de la casa, con un antiguo bosque de coníferas o con los yarumos sembrados en los linderos.
Las aperturas en el volumen y la definición de las alturas variables de la cubierta están asociadas con la diferencia entre zonas para circular o permanecer. En los lugares de permanencia hay grandes ventanas y la cubierta dilata la sección hacia el exterior. Al circular y en los umbrales de los espacios hay vanos alargados o más pequeños; en este caso, la cubierta contrae la sección.



















Las paredes de una habitación son interposiciones en nuestro horizonte visual y esas paredes deben insinuar la experiencia del horizonte completo y libre. Un techo o las figuras estructurales particulares son canalizaciones del flujo energético de la gravedad y también los propios receptores del cuerpo resuenan y se ven conmovidos en la contemplación. Cuando el ojo percibe se excitan otros sentidos como el tacto o el sabor, se activa la memoria originando todo un complejo de expectativas.
Juan Navarro Baldeweg
Una Caja de Resonancia
Juan Navarro Baldeweg
Una Caja de Resonancia
︎
Diseño: Arq. Edgar Mazo, Arq. Sebastián Mejía, Arq. Luis Callejas
(como Paisajes Emergentes)
Desarrollo: Arq. Farhid Maya, Arq. Juan Carlos Ariztizábal, Est. Érica Martínez, Est. Sebastián Monsalve
Fotografías: Cristóbal Palma, Iwan Baan, Juan Esteban Gómez, Archivo Paisajes Emergentes
Localización: Envigado, Antioquia, Colombia
(como Paisajes Emergentes)
Desarrollo: Arq. Farhid Maya, Arq. Juan Carlos Ariztizábal, Est. Érica Martínez, Est. Sebastián Monsalve
Fotografías: Cristóbal Palma, Iwan Baan, Juan Esteban Gómez, Archivo Paisajes Emergentes
Localización: Envigado, Antioquia, Colombia